1 1 1 1 1 1 1 1 1
 
     
 
La Casa - Kelowna, British Columbia
 
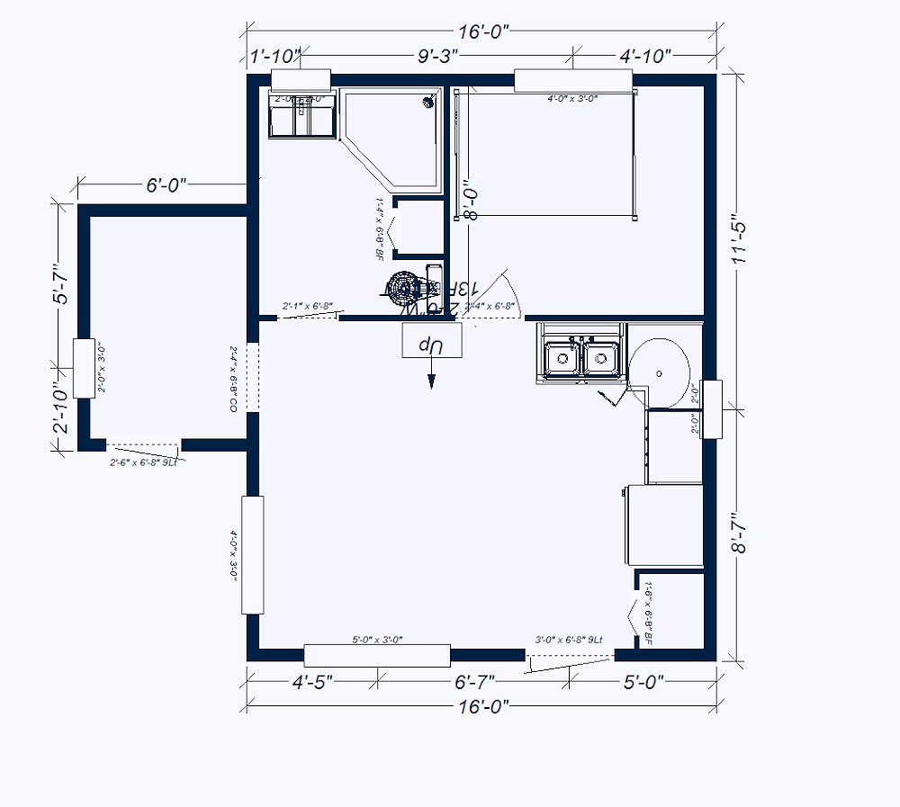
Below are some sample floor plans that can also be made based on the original. As always, we can modify all of our buildings, add or remove or move windows and doors to almost any location you like .
 
 
 
 
This is the original cabins floorplans as seen.
Bavarian Cottages La Casa model
 
Floor plan variant #1